产品分类/Products
2025年7月16日

高压电工特种作业安全技术实际操作建设方案

高压电工特种作业安全技术实际操作建设方案


功能实现
1、高压电工作业实操考试设备满足《国家安全监管总局关于做好特种作业(电工)整合工作有关事项的通知》(安监总局人事〔2018〕18号)中《高压电工作业安全技术实际操作考试标准》考试要求;
一、高压电工作业安全技术实际操作考试标准
1.制定依据
《高压电工作业培训大纲及考核标准》。

2.考试方式
实际操作、仿真模拟操作、口述。
3.考试要求
3.1实操科目及内容
3.1.1科目一:安全用具使用(K1)
3.1.1.1 电工仪器仪表安全使用(K11)
3.1.1.2 电工安全用具使用(K12)
3.1.1.3 电工安全标示的辨识(K13)
3.1.2科目二:安全操作技术(K2)
3.1.2.1 10kV高压开关柜的停(送)电操作(K21)
3.1.2.2 10kV高压成套配电装置的巡视检查(K22)
3.1.2.3 10kV柱上变压器的停(送)电操作(K23)
3.1.2.4 10kV高压开关柜故障判断及处理(K24)
3.1.2.5 10kV线路挂设保护接地线(K25)
3.1.2.6 变压器绝缘测量(K26)
3.1.2.7 电力电缆绝缘测试(K27)
3.1.2.8 变压器分接开关调整(K28)
3.1.2.9 导线在绝缘子上绑扎(K29)
3.1.3科目三:作业现场安全隐患排除(K3)
3.1.3.1 判断作业现场存在的安全风险、职业病危害(K31)
3.1.3.2 结合实际工作任务,排除作业现场存在的安全风险、职业病危害(K32)
3.1.4科目四:作业现场应急处置(K4)
3.1.4.1 触电事故现场的应急处理(K41)
3.1.4.2 单人徒手心肺复苏操作(K42)
3.1.4.3 灭火器的选择和使用(K43)
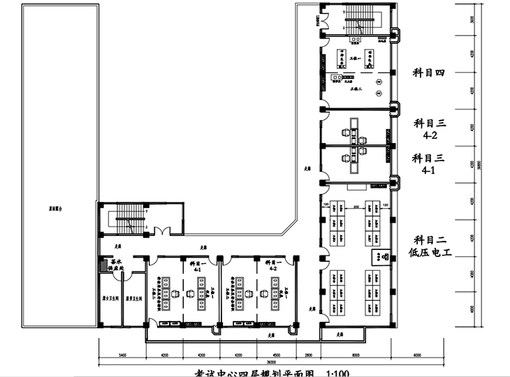
二、场地规划
目前将培训中心1、2号店面规划为高压作业K2实操车间;405、406规划为K1实操车间、402规划为K3实操车间、401规划为K4实操车间(其中K1与低压电工共用、K3、K4为通用考试科目建设)。
车间改造:1号店面中间两个隔断打掉,两个卫生间打掉。1、2号店面地面打掉平整,保证层高4.5M,墙面、天花板粉刷。每个工位需配3个插座。操作车间必须有环绕接地条(离墙3CM离地30CM安装)。
规划图布局如下:


1号店面面积为58.2M2,、2号店面面积为60.8M2 目前两个店面层高4.3M。


405、406总面积为 120M2,中间用屏风隔断,设计为4个工位;402面积为64M2,中间用屏风隔断,设计为2个工位。

电工电子技能与工艺实训台

PLC基础实训站(高级)

电工技术实训平台

PLC工业自动化实验台

电工PLC可编程控制、模拟电路、数字电路实训考核平台

高性能高级维修电工技能培训考核装置

电工电气维修技能实训考核装置

气动与PLC实训台

PLC可编程控制器实训台

电工综合实训考核设备

物联网技术应用实训平台

电子技术应用实训平台

智能型电工电子拖动综合实验装置(带电脑、PLC实验)

电工电子综合实训平台、电工实验室设备

高级电工综合实验装置

电工电子综合实验装置

网络型PLC可编程控制器综合实训装置

电子技术创新综合实训设备

PLC控制机电技术技能实训考核装置

机电装配技术综合实训平台

工厂供电综合自动化实训设备

单片机实训台

中级维修电工实训考核装置

通用电工电子实训设备

电工电子实训装置

电子技术实训考核平台

电气安装实训台

电工布线与电气装配实训装置

机电传动与PLC实训平台

可编程控制器系统应用实训考核平台

可编程控制器系统应用实训考核装置

电气PLC应用编程实训装置

电气综合实验实训装置

高性能电工综合实验装置

电工实训考核装置

电子实训考核平台

电子基础技术实训装置

电子电工单片机实训装置

数电模电单片机实训考核装置

电工实验室成套设备

电子工艺焊接装配生产线设备

工业控制实训装置(核心产品)

工业网络与运动控制平台

PLC变频器触摸屏综合实训装置

现代电气实训室设备

PLC实训室设备

机床排故实训室设备

电力拖动实训室设备

光伏技能实训室设备

电子焊接实训室设备

通用机电实训室设备

智能电气控制实训平台

机电一体化技术应用平台

电工模电数电电气控制实验台

电工模电数电电力拖动实验平台

电工模电数电综合实验台

电子工艺实训平台(双工位)

电力拖动实训平台(双工位)

电子产品设计与装调实训装置(双工位)

电子学综合实验平台(双工位)

PLC综合教学实训平台

新型高级电工实训考核装置

电工技术实训装置

单片机应用技术实训装置

光机电一体化实训考核装置

机电一体化实训考核装置

工业网络及运动控制自动化实训装置

液压与PLC教学实训平台

工业气动与PLC教学实训平台

电气安装与维修实训考核装置(标准版)

电气装置实训系统

PLC可编程控制器综合实训装置

电气安装与维修实训考核设备

电工电子技术综合实训台

电气装配综合实训装置

新能源汽车电工电子培训核心平台

电工实验台

电工电子电拖综合实验装置

电工电子综合实训台

电工与数电模电综合实验平台

电工电子综合实验装置

光机电一体化实训考核装置

建筑电气安装模拟间实训操作台

电气控制技术技能鉴定实训设备

维修电工技能鉴定实训考核装置(网孔板、双组型)

电子产品装调与人工智能创新考核平台平台

高级可编程控制器实验台

电子技术实训装置

电子技术综合实训考核设备

电气控制与PLC控制实训装置

维修电工技师实训考核装置

电气控制系统实训装置

工业互联网综合实训设备

电工模电数电综合实验台

电子焊接装配实训平台

PLC变频器触摸屏综合实训装置

工业自动化网络控制实训平台

电机·变压器维修及检测实训台

电工电子实训考核设备

电子技术焊接实训设备

数字电路实验箱

模拟电路实验箱

电路分析实验箱

电路原理与模拟电路综合实验箱

电路原理实验箱

单片机综合实验箱

PLC综合实训台

传感器实验箱

电子技术焊接实训设备

电工电子实训考核设备

智能仓储实验装置

物联网射频识别综合应用实验箱

供配电技术实训装备

液压传动与PLC控制实训装置

工业气动与PLC实训平台

高性能电工电子技术综合实训设备

电子技术实训装置

可编程控制技术(PLC)综合实训平台

机电技术技能实训考核设备

PLC综合实训平台

智能供配电系统自动化实训室设备

电工中、高级技能综合实训装置

电工中、高级技能综合实训台

plc可编程实验台

plc可编程实训平台

智能控制电气技术操作平台

智能制造设备安装与调试实训考核装置

网孔双组型电力拖动技能实训台

网孔双组型电工实训平台

光机电一体化实训考核装置

无人机装调综合实训装置

智能型中高级维修电工实训平台

智能型中高级维修电工电子与PLC控制实训平台

高性能电工电子电拖实验装置

电子电工试验台

PLC控制实训台

工业网络控制实训台

高级电工电子实验装置

电气控制技术实训装置

电工技能及工艺实训考核装置

维修电工实训装置

电工电子综合实验平台(核心产品)

电气控制综合实验系统

中、高级维修电工技能实训考核装置

可编程控制器实训装置

可编程控制器实验装置

电工基础技能综合实训设备

维修电工实训考核装置

电子产品装调与智能检测实训考核装置

机电综合实训平台

工业自动化网络控制平台

发电机并网实验装置

电工模拟电路数字电路与PLC综合实训考核平台

电工电子技能实训考核平台(双工位)

电气控制实训平台(单面双组型)

变频调速技术实训装置

电机拖动实验台、电机拖动实训装置

电力拖动实验台、电力拖动实训装置

电气控制技术实验室设备

电子电工实训室设备

自动控制实训室设备

智能制造生产线实训室设备

钳工操作实训室设备

电气装配实训台、电力拖动实训室设备

电力拖动实训室设备、中级维修电工实训考核台

电气装配电拖实训装置

可编程控制器小型实训台

可编程控制器系统应用技能考核实训平台(含六轴工业机器人)

智能高速五轴五联动数控加工中心

电工电子电力拖动综合实训平台

电工电子电力拖动综合实验平台

电机装配工技能实训装置

电机综合实训室设备

电机与拖动实验装置

液压传动综合实训平台

机床电器控制与维修实训台

PLC综合实训考核装置

传感器技术实训装置

电机控制及仪表照明电路实训考核装置

维修电工考核实训室设备

电子技术基础实验室设备

电机拖动与自动化控制系统综合实验台

单片机综合实训装置

电子工艺综合实训考核装置

电气工程实验平台

电工技术实验平台

电气控制与PLC实验平台

电机调速实验平台

网孔板电力拖动综合实训台

电工综合实验装置

电工维修操作实训台

传感器应用与检测实训平台

电气控制实训平台

电工电子技能实训平台

工业机器人应用系统集成与维护实训平台

智能运动控制实训平台

自动生产线实训平台

工业网络智能控制与维护实训平台

机电设备装调与维修实训考核装置

变频器与伺服驱动实训平台

工业控制与PLC实训平台

智能制造数字化控制实训平台

电气安装与调试实训平台

工业互联网实训平台

液压与气动控制实验实训平台

汽车电工电子实训设备

工业互联网工程技术实训台

工业网络与运动控制实训设备

网络型可编程控制器实验设备

光机电一体化实训考核设备

网络型可编程控制器实验装置

电工电子与电力拖动实训平台

模数电实验实训平台(二合一)

透明液压与气动综合控制试验台

液压系统应急故障模拟装置

可视化液压系统故障模拟装置

电工技术.模拟电子.数字电路技术.电力拖动综合实验台

电工技术综合实训操作平台

智能型维修电工(中高级)PLC实训平台

智能型中高级维修电工与西门子PLC综合实训平台

电工基本技能综合实训考核设备

电力拖动技能实训考核装置(接触器控制)

高级维修电工技能实训考核台,PLCS7200SMART

电工综合实验装置

模电技术实验装置

数电技术实验装置

数码产品维修技能实训平台

手机维修操作实训台

数电技术实验平台

电工电子实训台

网孔型维修电工实训考核装置

电子焊接装配操作台

工业自动化网络控制平台(核心产品)

电机拖动自动控制实验平台

高性能电工技术实验平台

高性能电工电子电力拖动综合实训装置

电工电子电拖综合实验装置

模数电实验箱(二合一)

电工技能及工艺实训考核装置

高性能电工综合实验装置

电机与自动化控制实验实训考核平台

PLC控制液压与气动实训设备

电气考核实训装置

可编程控制器实训装置

数电、模电、电路分析(三合一实训台)

电工电子技术实验装置

中高级维修电工电气控制实训装置

自动生产线拆装与调试实训装置

电工与电气控制综合实训考核装置

电力拖动实验台

工业传感器检测及控制实训平台

工业自动化可编程控制器实训平台

可编程控制器实训平台

现代电气与PLC应用技术实训平台

电工电子电力拖动实训考核平台

机电综合实训系统(S7-1200)

电机与变压器综合实验装置

机床电气PLC控制实训装置

单片机实训设备

机床电气技能实训考核鉴定装置

PLC综合实训装置

供配电所实训装置

电工电子综合应用创新实训装置

高级维修电工实训装置

中、高级电工技能综合实训考核平台

可编程控制器实训平台

可编程控制器实训装置

电工电子与电力拖动实训室设备

自动生产线拆装与调试实训装置

工业机器人教学实训装置

电工(中、高级)实训设备实训设备

工业控制及PLC实训平台

汽车电工电子实训设备

电气系统安装与调试实训平台

工业网络智能控制与维护实训平台

智能运动控制实训平台

自动生产线实训考核装备

电气控制实训平台

传感器应用与检测实训平台

电工电子技能综合实训考核平台

电工电子技能实训平台

变频器与伺服驱动技术实训系统

网孔型初级维修电工实训考核装置

电子创新设计与开发平台

变频调速技术实训装置

电器控制与PLC实验实训平台

电气控制系统与PLC实验平台

电力电子技术与PLC实验台

电气工程综合实验台

PLC实训台安装、调试、运行及维护技术方案

电工与电气自动化生产线装调实训平台

电气控制(PLC、变频器、触摸屏)实训装置

模电数电综合实训平台

电工电子技术实训考核装置

电工电气实训考核装置

高级维修电工实训平台

模拟电路、数字电路、单片机实训考核装置

电机拖动实训装置

电子实训创新综合实验平台

电气控制(PLC、变频器、触摸屏)实训平台

工厂供电技术实训装置

机电一体化综合实训装置

可编程控制器综合实训设备

电力拖动与PLC控制实训平台

工业传感器检测及控制实训装置

电气控制系统与PLC实验室设备

PLC控制实训操作台

电机与电气控制实验室设备

西门子PLC实验室设备

智能电工技术实验装置

PLC/传感、驱动综合应用实验台

高级技师电工及技能培训考核实训装置

电工综合实训考核装置

网孔型电工综合实训考核装置

电工实验台

PLC综合实训台

电工电子技术实训台

高级电工电子实验装置

电机教学考核装置

电工技能训练与考核平台

电气综合训练平台

西门子1512C-1PNPLC可编程控制器实训装置

电气装配实训室配备

电机故障检测实训考核装置

PLC实训台

电机电气控制实训平台

高级电工实训考核装置

智能电气控制技术操作平台

维修电工仪表照明实训考核装置

台达机电技术综合实训考核设备

PLC工业组态一体化实训平台

欧姆龙电控实训平台

三菱电控实训平台

PLC实训台 (两工位)

模数电综合实验平台

模拟与数字电路综合应用创新实训平台

计算机装调与维修技能鉴定装置

计算机组装与维护实训装置

PLC及电气控制实训装置

电工技能实训装置

电子综合应用创新实训装置

电气装配技能及工艺实训装置

计算机组装与维护实验台

传感器检测与转换技术实验实训平台

电工电子综合应用实训台

电气安装与维修实训考核装置

继电保护试验、变频调速实训装置

低压电工实训平台

气动控制实训台

电工综合实训考核设备

电力拖动实训装置

电工实验台

维修电工电气控制技能实训考核装置(含机床电路实训)

电工与PLC控制技术实训平台

楼宇消防自动化系统综合实训装置

电气维修试验设备

电工试验设备

电气故障试验设备

电气维修试验设备、电工、PLC、变频器、触摸屏实验平台

西门子1500PLC可编程控制器实训装置

工业互联网控制技术实验开发平台

工业互联网工程应用平台

模块化柔性生产线实训系统(八站)

高级维修电工技能实训装置

楼宇智能化工程实训系统

电工安装调试技能实训装置

电工电子技术创新设计综合应用实训装置

电气照明设备安装调试技能实训装置

船舶电力拖动及电气控制技能实训装置

供配电实验室设备,电气工程综合实训室设备

机床PLC电气控制实训装置

电工技能实训装置

维修电工技师·高级技师技能实训考核装置

初级维修电工及技能考核实训装置

电气自动化专业教学实训设备、电力拖动综合实训装置

电气控制实训平台、电力拖力实训平台

工程机械专业实训(验)设备

电力拖动实训室设备,电机拖动实验平台

工业网络控制实训室设备

工业自动化总控实训台

液压传动实验台

汽车实验室设备

智能型通用电工电子实验室设备

光机电一体化实训考核设备

工业电气自动化及电工技能考核实训平台

电子基本技能实训考核装置

中级电工、电拖实训考核装置

初级维修电工及技能考核实训装置

高性能中级维修电工及技能培训考核实训装置

高性能中级维修电工及技能培训考核实训装置

高性能高级维修维修电工实训考核装置

高级维修电工及技师技能实训考核装置

自动化生产线实训考核平台

透明液压与气动PLC控制综合实训装置

四工位电气安装实训台

新能源发电教学实训台

电工电子教学实训台

高性能电工电子电拖及自动化技术实训与考核装置

电工电子实训平台(双面四组型)

数字电路、模拟电路、电路基础实验台

现代电气控制系统安装与调试实训考核装置

数电模电实验室设备

传感器技术实训室设备

液压传动实训室设备

机床电气与PLC实验室设备

可编程控制器实训装置

机电与电气控制PLC实训装置

电力电子综合创新实验设备

高性能高级维修电工与PLC控制实训平台

高性能中级维修电工与PLC控制实训平台

高性能初级维修电工实训平台

电工电子基础与电拖(带直流电机)实验台

电工电子基础与电力拖动实训台

电工电子基础实验实训平台

电工基础实验实训平台

电工电子电拖PLC技术综合实训考核平台

电工电子单片机实训设备

电工与PLC可编程控制器实训台

电气装配综合实训装置

电工电子单片机实训装置

电工实训平台(单面双组型)

维修电工技师实训考核装置

电工技术基础实训室、电工基本技能实训室

电气基本技能实训室

工业自动化实训室建设方案

机床电气与PLC控制教学实验装置

如何选择液压传动实训台等教学设备厂家

液压与气压传动原理及应用

网孔板电气装配实验室设备

电气装配实训装置(网孔板、双组型)

网孔型电工技能及工艺实训考核装置(单面、双组)

五边形电工电子实训工作岛

电工技能测试台

维修电工实训设备

电子电工实验室建设方案

电力拖动实验装置

电工综合实验装置

电机与变压器综合实训室设备,电机维修与变压器检测实训室设备

数控机床电气维修实训室设备,车床铣床电气技能实训室设备

电气自动化技术专业设备

化工原理实训设备,化工原理实验装置,化工原理实验室设备

电力系统继电保护实验室、继电保护实验室、电力系统继电保护及自动装置

透明液压传动与PLC实训装置

维修电工基本技能,室内线路的安装,电动机的维护与检修技能,变压器的维护及检修技能。电子电路的安装 、调试与维修

现代物流仓储自动化实验系统

可编程控制器实训装置

可编程控制器实训设备

电气线路安装实训装置

风光互补发电实训装置

电力电子技术应用实训装置

电工电子综合应用创新实训装置

电气自动化设备安装与维修、实现理论教学与实践教学

电气安装与维修实训室,电气维修实训室

自动生产线装调与设计实训装置

电气智能技术应用教学系统实验台

三菱FX3G-40MR光机电一体化实训考核装置

西门子S7-1200光机电一体化实训考核装置

自动生产线拆装与调试实训装置

光电一体化实训考核装置,选择我们准没错

PLC可编程控制器综合实训装置

电工电子·电拖·PLC技术综合实训考核装置

风机盘管接线安装实训装置

电动阀门控制安装实训装置

除湿机电气控制系统实训台

全工况多功能型除湿系统实训装置

电气控制技术实训室《工业自动化控制》

机器人应用实训室设备

焊接机器人工作站

机器人教学课程解决方案

工业机器人基础工作站设备(ABB机器人系统)

工业自动化实训室设备,应用型人才的培养提实训平台

工业电气自动化及电工技能考核实训平台

可编程工业控制实训平台

电气安装与维修实训装置

电传动与控制实验装置

自动化实训装置

电气安装与维修实训考核装置

电气控制系统安装与调试实训设备

建筑电气工程师考核系统

电气安装与维修实训室、电气安装综合实训室

通用电工电子电拖实验装置

直流伺服电机运动控制实验装置

机电综实训考核平台

电力拖动实验装置

电机性能测试柜

电机控制实训台

电机控制接线实验台

电机运动控制实训装置

电工电机拖动实训装置

电机装配与运行检测实训装置

电机电控配线安装实训装置

电机·变压器维修及检测实训装置

电机故障检测实训考核装置

变频器工作原理实训装置

维修电工技能实训考核装置(电气控制·PLC·变频器)

高级电工技能实训考核装置

高级维修电工变频调速PLC可编程控制实训装置

电子装配生产流水线装置,电子工艺焊接装配生产线

现代电工技术实训考核装置(柜式、双面型)

模拟电路、数字电路实验平台

模拟电子电路实验装置

数字电路实验装置

电子工艺焊接装配生产线

电工电子创新综合实训装置

电子及检测实训平台

电子创新实验台

电子设计及操作台

电工技能一体化工作室规划与建设

网络型高性能电工电子技术实训与考核装置

电子(模电数电)技术综合应用创新实训考核装置

初中高级电工实训设备

电工电子综合实验装置

电子技术综合实训考核平台

电工实训考核装置

电工技能实训装置

电工技能实训台

电工实训考核装置,电工技术实训考核装置,网孔型电工实训考核设备

现代电气控制系统安装与调试实训考核装置

网孔型电气控制实训装置

维修电工、高级电工培训、中级电工、初级电工、机电技术应用

电子产品装调与智能检测实训考核装置

电力电子技术应用创新设计综合实训装置

电力自动化及继电保护实验装置、在继电保护教学实验的重要作用

电气工程实验室设备、供配电技术实验室设备、电气工程综合自动化实验室

电机与拖动实验室、电力电子技术实验室、自动控制原理实验室、信号与系统实验室、电气工程创新实验室

电工电子自动化综合实验实训装置

电子电工、电工设备电子仪器就找上海硕博

电工技能鉴定实训装置

低压电气装配工技能实训考核装置

电工电拖综合实训装置

电工技术实训考核装置

电工实训考核装置

光伏实训模拟装置、光伏智能发电训练台、风力发电实验台、太阳能热水系统、风光互补实验台

轨道电气控制实训装置、轨道电气拖动实训装置

轨道交通电力系统综合自动化技能实训考核平台

轨道交通电力系统监控实训室设备建设方案

电力系统综合自动化技能实训考核平台

建筑给排水电气及自动化实训系统

建筑电气设备实验装置

建筑群设备间光纤传输系统实验实训装置

智能消防系统实训装置

消防工程专业实验室设备

消火栓灭火系统实训装置

自动喷水灭火系统实验实训装置

楼宇自动化综合布线实训室

楼宇智能安防布线实训系统(工程型)

有线电视系统实训装置

网络综合布线实训装置

楼宇智能化综合布线考核实训装置

弱电井中垂直工作区系统实验实训装置

消防自动化实训装置

电机及电气技术实验装置

电机电力电子及电气控制技术实验装置

电路分析与电力电子技术实验装置

大功率直流调速系统实训考核装置

电机装配与运行检测实训考核设备

电机电力拖动及电气控制实训装置

机电实训设备,数控实训设备,模具实训设备

电机及电气控制实验装置

电子创新综合实训平台

电工电拖综合实训平台

电机控制实验台、电机PLC控制实验装置

摇臂钻集合实验台,机床电气控制技能实训考核装置

电机及拖动控制实训柜,电机拖动控制实训考核装置

单片机控制功能实训考核装置,单片机技术实训室设备

单片机技术应用实训考核装置

单片机实训室设备,单片机控制功能实训考核装置

单片机应用创新实验平台

单片机实训室设备

液压与气动实训室设备,液压与气动技术实训室装置

数控机床维修实训室设备,数控机床维修实训安装设备

电气自动化设备安装与维修

自动加工与装配生产线实训考核设备

机械基础实训室设备,机械设计实训设备,机械传动实训台

机床电气技能实训考核鉴定装置

现代电气控制系统安装与调试实训考核装置

模电、数电、电力拖动实验台

双面网孔板维修电工技能实训考核装置

电工实验台

高级电工技术实训室

维修电工电气控制技能实训考核装置

维修电工通用型实训考核实训装置

维修电工排故培训考核装置

电工基本技能综合实训设备

机电一体化技术实训室设备专业人才培养方案

SBPLC-02FPLC可编程控制器实验装置

PLC综合实验装置,可编程控制器实验系统

自动化生产线实训考核装置,上海硕博是值得您信赖

机电一体化技术实训装置在中职教学中的应用人才培养

电机装配与运行检测实训平台

电气类实验实训室设备

机电一体化系统综合实训平台

机电一体化综合系统实训装置

开放式自动化及测控综合实训装置

工业机械传动装调实训平台

工业数字化网络综合实训平台

工业运动控制技术实训装置

工业运动控制技术实训台

立体仓库实物教学实训装置

小车运动控制模型

自动送料装车实训模型

材料分拣实训装置

自动化控制基础实训箱

煤矿自动化控制实训平台

机电一体化综合实训考核设备

基于PLC机电一体化实训平台

光电一体化实训考核装置——实现理论与实践相结合

PLC也称PC实验室建设方案,培养PLC应用专业技能型人才

西门子S7-1500实训设备,PLC+变频+电气控制+触摸屏

智能温室控制实训装置(模拟量实物)

智能仓库任务教学模型

PLC网络综合实验平台

消防排烟及消防卷帘门仿真实训系统,消防卷帘门系统实训装置,防烟排烟系统实训装置

变频恒压供水系统实训装置

消防联动控制中心及灭火系统实训装置

给排水管道安装实训装置

建筑给排水系统安装实训室,给排水实验室

消防实训室,消防电梯实训室,消防工程技术专业实训室

智能楼宇实训系统、智能建筑实训装置、消防培训设备,建筑供电实训装置

管道安装及控制实训装置

楼宇工程技能实训设备

传感器技术实训台——将抽象理论转化为操作能力

楼宇消防自动化系统综合实训室,消防实训室参考方案

加工制造类实训室、机电类实训室设备、机械基础实训室、装配工艺实训台

直流设备检修工技能实训考核装置

电机变压器维修检测实训室方案

电子电工实训室_电子技术实训装置_创新人才实训

电工操作实操台,网孔型电工技能实训考核装置

电气安装实训装置

电工电子综合应用创新实训装置

电子焊接装配实训室设备、电子焊接装配生产线建设方案

电工电子实训台

电机拖动与调速系统实训装置

电气控制综合实训室

电子技术综合实验装置

电子工艺实训室建设方案

网孔型高级维修电工实训设备,网孔型中级维修电工实训设备,网孔型初级维修电工实训设备

高级电工电拖实训考核柜、中级电工电拖实训考核考核柜、初级电工电拖实训考核考核柜

光机电一体化实训室,电气自动化创新实践室

高级维修电工实训室,中级维修电工实训室,初级维修电工实训室

电力拖动实训台

电工基础及基本技能实训台

电机拖动实训设备

电子技术实验实训室设备

电工电子实训台

机床电气控制与PLC实训室建设

供电技术实训装置

电力拖动与控制技术实训装置

电力电子及电气传动实验台

高级电工实训设备、中级电工实训设备、初级电工实训设备

电力系统继电保护实验台

电气控制实训室设备

液压传动实训台,选上海硕博科教设备

单片机/传感器综合实验平台,单片机原理与应用、生物医学传感器原理与应用、课程的实验教学

西门子CPU314C-2DP可编程控制器实验装置

五金冲压模、拆装模具、铝合金拆装实训模具、注塑模具、冲孔模、级进模、复合模

充电桩(站)及监控实训系统、新能源汽车充电桩

液压同步油缸,单向阀,先导式溢流阀,通电磁换向阀

液压元件拆装综合实训装置

传感器实训室,传感器技术实训装置

创新型测控传感器技术综合实验实训装置

电气控制技术实验装置

维修电工实训考核装置

维修电工实验柜

维修电工实训装置、维修电工技能操作台

新能源汽车交直流充电桩综合实训台

安全用电基础知识 、安全用电实训装置

现代制冷与空调系统实训考核装置,应用型人才的理想实训设备

新能源汽车实训室设备建设标准,电动汽车教学设备服务产教融合协同发展

智能楼宇系统实训装置依据智能建筑行业的发展

教学用插齿机实验台

轮系创新设计拼装及仿真实验台

曲柄滑块导杆凸轮机构实验台

螺栓与螺栓组联接综合实验台

教学用液压元器件,教学型气动元器件,教学用液压拆装元器件

电气安装与维修实训考核装置,上海硕博真的合适_应用教学_培养实用型人才

传感器技术实训台,传感器实验装置,上海硕博让你觉得满意

光电一体化实训考核装置,上海硕博可以期待

汽车与交通工程设备、电气与电子工程设备、动力与机械工程设备、仪器仪表工程设备

电工电力电子实训平台

电子实验台、电子电工技术实验台、电子实训台,电机拖动实验台,电力拖动实训台

工厂供电综合自动化实训装置

供配电实验室设备,电气工程综合实训设备

电工基本操作技术实训室设备

机电驱动实训设备

电梯安全全操作规程,电梯的消防控制与迫降功能

机电一体化,培养高技术应用型人才

机电一体化综合系统实训设备

光机电一体化实训考核装置

自动生产线实训室设备

光电一体化实训考核装置,优选硕博科教

电子产品装配实训室

电气控制技能实训考核装置

电气安装与维修实训考核设备

通用智能型电工、电子实验室

电子产品装配与调试生产线

多功能物料分拣实训系统

楼宇供配电系统实训装置(LON总线型)

模拟电路实验装置

传感器实验台操作规程

PLC透明液压回路试验台

港口电气及自动化实训、船舶电动控制仪表实训、船舶工业实验设备实训

液压元件拆卸与装配试验台

电机与变压器综合实验装置

电力拖动.PLC技能实训装置,电力拖动、PLC实训装置

高级维修电工综合实训装置(附件)为竞赛考核平台

高级电工职业技能鉴定综合实训考核装置

电力继电保护实验装置

电力自动化及继电保护实验台

电力拖动(工厂电气控制)实验装置

液压传动实验室,气动实验室,液压气动传动与控制实验室

液压与气压室建设方案,液压与气压实验室

透明液压传动与PLC控制实训装置

传感器与检测技术实验室

机械运动创新方案拼装实验台

西门子与三菱PLC区别、PLC的维护与保养不足、西门子PLC模拟量输入模块的接线方法

维修电工实训考核装置,上海硕博可以期待

高级电工技术实验台,电工电子实验室

电器装配实训室装置

电力电子技术实验室设备

智能家居系统应用实训装置

电气安装与维修实训考核装置

自动化综合实训装置

单片机开发应用技术实验系统

电工实训考核装置简介,电气装配实训台注意事项

光电一体化实训考核装置,上海硕博帮助培养更多的人才

传感器及检测技术实验室是按照应用型人才培养教育

电工·电子技术创新设计综合应用实训装置基本内容简介

电工电子技术创新设计综合应用实训装置

(初级)电气动力设备安装调试技能实训装置

(中级)电气动力设备安装调试技能实训装置

电气照明设备安装调试技能实训装置

高性能电工技术实验台

电工技术综合实验装置

数字电路实验装置

模拟电路实验装置

电工技能实训考核装置

电工测量仪表的使用

电工实训装置

电工实验装置

电工电子综合实验装置

电工电子电拖实训装置

电工·电子技术实训装置

现代高级电工电拖实训考核设备

维修电工电气控制实训考核装置

仪表及照明单三相电机控制实训考核装置

基本电工技能实训装置

电工实训室、电工实训、电机电气控制

电工基础试验台

通用电子实验台

通用电工电子实验台

通用电工电子电力拖动实验台

通用电工电子电力拖动带直流电机实验台

电工、电子、电力拖动(带直流电机、三相可调)实验装置

SBX-18A通用电力拖动实验室成套设备

SBX-18B通用电力拖动实验室成套设备(带直流电机实验)

通用电工电子 电力拖动 直流电机实验室设备 (四合一)

现代电气控制系统安装与调试实训装置

电工·电子·电拖创新实训室设备

现代电气控制综合实训装置

电工技术实验装置

立式电工电子实验装置

智能型电工电子技术实验装置

SBGDG-188C智能型电工、电子、电力拖动综合实验装置

SBGDG-188D智能型电工、电子、电力拖动综合实验装置(带PLC实验)

SBGDG-188E智能型电工、电子/电拖、PLC、单片机综合实验装置

SBGDG-188F智能型电工、电子、电拖、PLC、变频调速综合实验装置

电子产品装调一体化创新实训装置

电气装配与工艺实训装置(单面双组型)

SBDQ-890型电气装配实训台(单面双组型)

机床PLC电气控制实训考核装置

电气装配实训台

高级电工技术实验台

高性能电工电拖实验装置

高级电工电子电拖综合实验台

高级电工实训设备,中电工实训设备,初电工实训设备

初级电工、电拖实训考核装置(柜式)

中级电工、电拖实训考核装置(柜式)

高级电工、电拖实训考核装置(柜式)

高级维修电工及技能培训考核实训装置、中级维修电工技能培训考核装置、初级维修电工及技能考核实训装置

维修电工电气控制及仪表照明电路综合实训考核装置

仪表及照明电路实训考核装置(柜式、两面双组型)

仪表照明实训考核装置

高级维修电工实训考核装置

维修电工电气控制及仪表照明电路综合实训考核装置

SBWX-01B维修电工技师.高级技师技能实训考核装置

维修电工电气控制技能实训考核装置

高级电工实训考核鉴定装置

智能型现代电气控制实训考核装置

高性能初级维修电工及技能培训考核实训装置

高性能中级维修电工及技能培训考核实训装置

高性能高级维修电工及技能培训考核实训装置

高性能高级维修电工及技能培训考核实训装置

网络型PLC变频调速电工实训考核装置、网络型PLC高级电工综合实训考核装置

SBDG-1E电工·电子·电力拖动·PLC·变频调速综合实验装置

机床电气与PLC实验室,可编程控制器实验

电气安装与维修实训考核装置,硕博科教值得信赖

电工电子技术·电力拖动实训考核装置

电子技术实验教学平台

SBJSD-790D电子技术综合实训考核装置

SBJSD-790E电工电子技术实训考核装置

电工实训装置

电工电子实验装置

电工电子电力拖动实验装置

电工电子电力拖动实验装置(带PLC实验)

电子产品装调与智能检测实训考核装置

SBGYD-01A电子工艺实训考核装置、SBGYD-01E电子工艺实训考核装置

SBGYD-01C电子工艺综合实训装置

SBGYD-01E-Y型电子工艺实训考核装置

电工技能及工艺实训考核装置(网孔板)

《机床电气控制与PLC实训装置》

电子产品焊接装配实训台

维修电工实训考核系统

电子实验室设备

通用电工电子实验室成套设备报价

电测仪表工培训考核装置

SBGYP-01A高压配电操作实训室设备

SBDPD-01A低压配电操作实训室设备

电机电力电子与交直流调速实验台、电机电力电子与电气传动技术实验装置

低压配电成套实训装置

低压供配电技术实训设备

工厂供电技术实训装置

变配电室值班电工技能培训考核系统

供配电所实训装置

电力系统继电保护实验室设备

电力系统微机线路保护实训考核装置

电力系统继电保护工培训考核平台

SBDLB-0C型电力系统自动化实训平台

SBCAYD-1型农村家用供电线路装调实训装置

SBDJK-04电机及自动控制实验装置

高级维修电工实训设备

维修电工中级技能实训设备

初级维修电工实训设备

电气安装与维修实训考核装置

电气动力设备安装调试技能实训装置

电力系统综合自动化教学实验装置、变电变电站综合自动化实验装置、电力自动化与PLC自动装置综合实验系统

维修电工与PLC实训考核装置(双工位)

电气系统安装与调试实训装置

高级技师维修电工实训装置

维修电工技师、高级技师技能实训考核装置

维修电工仪表照明实训考核装置

维修电工电气控制及仪表照明电路综合实训考核装置

维修电工电气控制技能实训考核装置

电工实训操作实操台

安全用电实训考核装置

电测仪表工培训考核装置

电工、模电、数电、微机接口及微机应用实验设备(适用于高校、大专、职业学院)  更多产品>>

数电模电实训设备、数电模电实验设备

模拟 数字电子电路微机接口 微机应用综合实验室设备

信号与系统·控制理论·计算机控制技术实验台

模电、数电、通信原理教学实验装置综合实验台

模电、数电、现代通讯原理实验室成套设备

高级模电、数电综合实验台

模电、数电、高频电路综合实验台

SB-528模电、数电、自动控制综合实验台

模电、数电、单片机实验开发系统综合实验台

电工电子基础实验室、电工电子实验室、电工电路实验室、电子装配实验室、电子技术实验室

SB-528电工实验台

模电.数电实验台

SB-528电工、模电、数电实验台(三合一)

电工、模电、数电、电气控制实验台(四合一)

SB-528电工、模电、数电、电气控制(带直流电机)实验台(五合一)

电力电子电气自动控制技术实训装置

电力电子技术实训装置

电力电子及电机拖动综合实验装置

电力电子技术及电机控制实验装置

电力电子及电气传动实训装置

电力电子技术实验装置

电力自动化及继电保护实验装置

现代电力电子器件实验箱

现代电工技术实训考核装置

现代电力电子技术实验设备

电工电子电气技术实训装置

电机拖动及电气控制技术实验装置

电机维修及检测实训装置,控制微电机综合实验装置,电机拖动实训设备

电机原理及电机拖动实验系统

电机维修及检测实训设备

电机及电气技术实验(实训)装置(电机综合类)

SBDQ-01A型电机及电气技术实验装置

电气动力设备安装调试技能实训装置

SBDQ-01C型电机及电气技术实验装置

电气操控技术实训室装备

电力电子技术及电机控制实验装置

电工电子综合应用创新实训装置装置

电机拖动与控制技术实验室

电工电子相关实验教学设备

电工电子实训装置,提高电工装配专业技能,为就业打下基础

电机及电气技术实验装置

电力电子技术实训装置

电子技术综合实训考核装置

电子、单片机技术综合实训考核装置

电子技术综合实训平台

电工技术实训装置

电工电子技术实验台

电工、模电、数电、电力拖动(带直流电机)实验与实训考核台电工维修实训设备  更多产品>>

SB-760模电、数电实验与技能实训考核台

SB-760电工、模电、数电实验与技能实训考核台

通用电工、电子、电拖实验与电工、电子、电拖技能实训考核实验室设备

电工、模电、数电、电力拖动(带直流电机)实验与技能实训考核实验室设备

SB-760工厂电气控制实验、实训考核实验室成套设备

电工技能实训与考核实验室成套设备

电工·模电·数电·电拖·单片机·PLC·传感器技术综合实训考核装置 

电工、模电、数电、电气控制、PLC可编程控制综合实验装置

电工、电子、电拖(带直流电机)实验与电工、电子、电拖技能实训考核实验室设备

电气装配与工艺实训台

网孔型电工电子技能及工艺实训考核装置

网孔型电力拖动(工厂电气控制)技能及工艺实训考核装置

维修电工仪表照明实训考核装置

初级工实训台、中高工实训台、高级工实训台

网孔型通用电工实训台

电力拖动工厂电气控制技能及工艺实训考核装置、电力拖动PLC变频调速装置、网孔型电工电子电力拖动变频调速PLC装置 

高性能电工电子电拖及自动化技术实训与考核装置、高性能电工电子电拖及自动化技术实训与考核装置 

高性能电工技术实训考核装置、高性能电工·电子技术实训考核装置、高性能电工·电子·电力拖动技术实训考核装置 

电子技术综合实训考核装置,电工电子技术实训考核装置,电工电子技术·电力拖动实训考核装置 

电力拖动·PLC技能实训装置、电力拖动技能实训考核装置 

A865微机原理与单片机实验箱 

微机控制与仿真实验实训室 

嵌入式实验开发系统 

模拟电子技术实验箱 

数字电子技术实验箱,设计型(基础型) 

数字逻辑测试实验系统 

综合型单片机实验系统  

DSP实验开发系统 

超强型计算机组成原理与系统结构实验箱 

高频电路实验箱 

单片机、微机原理及接口技术二合一实验箱 

自控/计控原理实验箱 

自控原理与计算机控制实验箱 

八位、十六位计算机组成原理与系统结构实验箱 

数字逻辑实验箱 

数字模拟电路实验箱 

模数电二合一试验箱 

电工技术实验箱 

电子技术实验箱 

电路原理实验箱、数字电路实验箱 

模拟电路技术实验箱、数字电路技术实验箱、电工技术实验箱 

电路分析实验箱、电路原理实验箱 

运动控制实训平台、CPTH超强型计算机组成原理与系统结构实验仪 

通信与信号处理实验箱

通信系统创新实验平台 

通信技术,电气工程实训 

信号与系统综合实验箱 

移动通信系统、通信原理实验平台 

程控交换综合实验箱

光纤通信教学实验系统

光纤通信综合实验箱

高频电子线路实验箱  

通信原理综合实验箱

现代通信技术实验平台

微波及天线综合实验系统

PLC可编程控制器实验箱

单片机开发实验箱、万能单片机实验开发系统、单片机实验箱

交流电路实验箱

直流电路实验箱

单片机实验箱

单片机开发实验箱、万能单片机实验开发系统、单片机实验箱

通信实验箱、移动通信实验箱,通信原理实验箱、PLC可编程控制器实验箱,通信、光纤移动实验箱、电工技术实验箱

智能通用电工、电子、电力拖动实验室设备(适用高校、专科、职业学院、中专、技校、职校 )

电力拖动实训平台

电机与拖动实验室设备及装置

通用智能型电子实验与技能实训考核台

通用智能型电工实验和电工技能实训考核台

通用智能型电工、电子实验与技能实训考核台

通用智能型电工、电子、电拖实验与技能实训考核台

电工、电子、电力拖动(带直流电机)技能实训考核台维修电工实设备   更多产品>>

电工电子技术实训装置

电工技能实训考核台

电子技能实训考核台

电工、电子技能实训考核台

电工、电子、电力拖动技能实训考核台

电工、电子、电力拖动(带直流电机)技能实训考核台

电气控制实训装置(单面双组型)

电气实验实训室,主要服务机械制造自动化电工维修考核设备 更多产品>>

SB-528立式电工实验台

SB-528立式电工、模电、数电实验台

SB-528立式电工、模电、数电、电气控制实验台

SB-528立式电工、模电、数电、电气控制(带直流电机)实验台

SB-528E立式电工·模电·数电·单片机综合实验装置

立式电工·模电·数电·电气控制·PLC可编程控制综合实验装置

智能型电工电子电拖PLC单片机综合实验装置

高级电工模电数电电力拖动实验设备、电工电子实验室设备、电工电子实验室、电力拖动实验台

电力拖动(工厂电气控制)实验装置

高级电工实验室成套设备(带功率表、功率因数表)

高级模电、数电实验室成套设备

PLC编程控制实训设备、单片机实验室、计算机原理实验室设备、工业自动化实验台   更多产品>>

PLC技术实训设备、变频实训设备、电气控制实训设备、触摸屏实训设备、单片技术机实训设备

可编程变频器及电气控制综合实训装置

工业网络控制实训装置

可编程控制器自动化教学装置

变频技术实验设备

电脑拆装实训室

十字滑台实训台

PLC实训装置

PLC、单片机、变频器实训设备

PLC、变频器、电气控制、触摸屏实训装置

cr40plc可编程控制器综合实训装置

SB-PLC2可编程控制实验装置

可编程控制实验装置及单片机综合实验台 

可编程控制器、单片机、自动控制原理综合实验台

SB-PLC3可编程控制、微机接口及微机应用综合实验台

SB-105计算机组成原理、微机接口及应用综合实验台

PLC网络综合实验平台(三菱PLC)

网络型PLC可编程控制实验装置

PLC可编程控制实训装置PLC+电气控制

网络型PLC可编程控制器综合实训装置 

PLC变频调速实验装置

调速PLC可编程控制综合实训装置

多种液体混合实验装置

SB-P09PLC可编程控制器、单片机开发应用及电气控制综合实训装置

SB-P10PLC可编程控制器、单片机开发应用及变频调速综合实训装置

可编程序控制系统设计师综合实训装置

单片机实训考核装置在中职课程教学中的应用

单片机技术开发平台

单片机开发综合实验装置

单片机开发应用技术综合实验装置

SB-5500型单片机应用技术实验装置

工业自动化总控实训台

单片机•CPLD/FPGA开发综合实验装置

《PLC原理及应用》《机床电气控制及PLC》

SBDPX-238单片机控制功能实训考核装置

SBS-03B单片机开发系统、自动控制原理综合实验装置

网络型可编程控制器(1500 PLC)实验装置

PLC可编程控制器实验装置 (PLC+伺服+变频器+电气控制+触摸屏)

SBDICE-238型单片机应用实训考核装置

单片机应用创新实验平台

S7-1200PLC综合实训系统硬件平台

网络型可编程控制器(1200 PLC)实验装置

SBPLC-03B网络型PLC可编程控制及单片机实验开发系统综合实验装置

SBPLC-03C网络型PLC可编程控制/单片机实验开发系统自动控制原理/综合实验装置

SBPLC-03D网络型PLC可编程控制/微机接口及微机应用综合实验装置

网络型PLC可编程控制器综合实训装置(PLC+变频ABB+电气控制+触摸屏)

网络型PLC可编程控制器、变频调速、触摸屏及电气控制实验装置

网络型PLC可编程控制器、变频调速、触摸屏、电气控制及单片机实验开发系统综合实验装置

网络型PLC可编程控制器、变频调速、触摸屏、电气控制及微机接口与微机应用综合实验装置

SBPLX-01APLC可编程控制器实训装置(西门子)

网络型综合控制实训平台

SB-01APLC可编程控制实验及单片机实验开发系统综合实验装置

SB-01BPLC可编程控制系统、单片机实验开发系统、自动控制原理综合实验装置

SB-01CPLC可编程控制系统、微机接口及微机应用综合实验装置

计算机组装与维护实训装置

SBSKJ-16B型信号与系统·控制理论·计算机控制技术实验台

单片机实训箱、 可编程控制器实验箱

PLC基础实验箱

工业自动化综合实训装置

工业自动化综合实训装置(PLC+变频器+触摸屏+单片机)

工业全数字直流调速系统综合实训装置

变频调速系统开发平台

变频器工作原理实训设备

SB-801型变频调速实验装置

SBX-02交直流调速实训装置

工业自动化综合实训装置

工业自动化综合实训装置(PLC+变频器+触摸屏+单片机)

工业自动化综合实训装置(西门子)

自动化综合实训装置

工业全数字控制实训装置

工业自动化通讯网络实训平台

工业自动生产线实训装置(1200系统)

工业全数字控制实训装置

工业自动化综合实验考核装置

工业电气自动化及电工电子技能考核实训平台

SBGZS-01A工业自动化综合实验考核装置

网络型plc综合实验平台

工业控制与plc综合实训平台

工业自动化网络控制平台

SBOGJDX--A机电、电气实验室设备(可编程序控制器PLC)、SBOGJDX-A/B机电、电气实验室设备(可编程序控制器PLC)

液压传动实验台、液压PLC实验台、气动液压PLC实验台、电梯模型、智能建筑实验室设备 更多产品>>

液压安装调试实训装置

液压与气动技术实训设备,培养高级技术应用性专业人才

PLC控制透明液压与气动综合实训装备

液压气动技术实训室设备,液压气动实训装置

气动机械手实训考核装置

手控气动实训台,电控气动实训台

气动传动实验台

气动实训箱

基本液压传动实验台

液压传动实训台装置

气动机械手实训模型

动态性能液压教学实验台

压力形成与液阻特性液压实验台

数据采集液压综合实验台

液压元件拆装实训设备

创新型双面透明液压气动PLC控制实验台

双面透明液压传动技术教学装置

透明液压传动演示系统

液压传动实验台

透明液压传动与PLC实训装置

YY-19B透明液压PLC控制实训装置

SB-102型气动PLC控制实训装置

透明液压与气动传动综合实训装置

液压技术实训设备,气动技术实训设备

工业型液压综合实验台

PLC控制液压与气动综合实训装置(工业型)

透明液压传动与PLC控制实训装置

透明气动PLC控制实训装置

液压实训平台,气动实训平台,液压元件实训台

气动PLC控制实验实训设备

四合一透明液压传动演示系统

液压与气压实验台

SBYY-CZ液压元件拆装实训台

叉车液压系统实训台

SB-WJJ挖掘机液压系统与PLC控制实训装置

YYWAJUE-透明液压PLC控制实验装置(挖掘机液压试验台)

起重机械实训装置

SBK-ZZJW装载机液压系统与PLC控制实训装置

SBK-QZJA起重机液压系统与PLC控制实训装置

SB-85A液压与气压传动PLC综合实训装置(工业型)

SB-PT液压传动与PLC实训装置(工业型单面)

液压传动、液压回路系列模型(液压阀、阀体)

有机房电梯实训装置

SB-778型自动扶梯维修与保养实训考核装置

自动扶梯维修与保养实训考核装置

电梯电气实训考核装置

电梯仿真教学模型

智能串行四层单梯透明仿真教学电梯

六层透明仿真教学电梯模型

实物电梯实训考核设备

电梯安装维修实训装置,电梯维修实训设备

工业模型系列之机械手

DT-2000型透明仿真教学电梯模型

双联四层透明仿真教学电梯模型

双联六层透明仿真教学电梯模型

DT-2008群控六层透明仿真教学电梯模型

DT-2008六层透明仿真教学电梯模型

自动扶梯模拟设备

SBSW-DT09四层实物电梯实训考核设备

SB-911B智能型群梯控制实训考核设备

电梯实训室建设方案,电梯实训装备

电梯安装与调整实训室设备

电梯电气控制装调实训考核装置

SB-DT2016电梯安装维修与保养实训考核装置

智能电梯装调与维护实训设备

消火栓及预作式自动喷淋灭火系统实训装置

电梯安装维修,培养电梯安装与维修专业人才 

热水供暖循环系统综合实训装置

SBLY-01A型楼宇自控创新实训平台(网孔板型)

SBLYGZ-3楼宇照明系统实训装置

SBLYGZ-1楼宇供配电系统实训装置

SBPS-1给排水设备安装与控制装置

现场总线过程控制系统实验装置

传感器实训设备、传感器实验设备、实验箱类、变频调速实验装置工业自动化实训设备

传感器系统实验仪

传感器与检测技术实验台

传感器技术实验箱

增强型型检测与转换(传感器)技术实验装置

压力传感器标定实验系统

热电阻和热点偶温度传感器校验实验系统

传感器技术实训台选择要领要谨记

液体流量仪表标定实验系统

压力控制测量实验装置

液位流量控制实验装置

热工自动化仪表实训平台

气动薄膜控制阀与电气安装阀门定位调校实训置

SB-811型检测与转换(传感器)技术实验17种箱

传感器与检测技术实训装置

创新型测控/传感器技术综合实验实训平台

流量控制测量装置

温度测控实验装置

SB-XZT多功能升降式实用绘图桌

工程制图实验室设备

钳工实验室成套设备

焊工、铆工实操室成套设备

SBHJ-201焊接多功能实训实验室成套设备

钳工技能实训台(六工位电钳台)

机电一体化实验室设备、教学数控车床、教学数控铣床、透明电机模型、变压器模型  更多产品>>

机电一体化综合系统实训装置,机电一体化实训室设备-培养创新型高技能人才!

机电气一体化综合实验(训)系统,机电气一体化综合实验实训设备

机电一体化综合实训系统

光机电气一体化实训装置

电机故障诊断与维修检测实训考核装置

机床电路实训考核设备

机床电路实训设备

机床电气技能实训考核鉴定装置(柜式双面、四合一、四种机床)

网孔型电气控制实训装置

机电一体化综合实训室设备、机电液气一体化实训平台

数控设备维修实验室设备、数控机床电气故障检测实训台

机电一体化数控编程实验台 数控车床 数控铣床

光机电一体化实训考核装置

物料分拣实训装置

自动生产线实训考核装置

工业自动生产线实训装置

机电一体化综合实训考核装置

机电一体化技术装备,高职专业实训设置

机床电气控制技术实训台

柔性自动化生产线实训系统(六站)

SB-07A网络化智能型机床电气技能实训考核装置、SBJDWL系列网络化智能型机床实训考核装置

网络化智能型机床电气技能实训考核装置

机床智能实训考核装置

机床电气培训考核实验装置

网孔型万能机床电路实训考核鉴定装置

数控铣床装调与维修考核实训设备

数控车床电气控制与维修实训考核装置

SB-2006数控机床操控、维修、组装实训示教机

SB-802C数控车床综合实训考核装置、SB-802C数控铣床综合实训考核装置

SB-801A数控车床综合实训考核实验台

SBSKB-06M-2型数控铣床电气控制与维修实训台(拆装型三坐标)(系统:西门子802C)

SBSKB-06T-2型数控车床电气控制与维修实训台(折装型二坐标)(SINUMERIK 802C)

广州数控928TA2系统数控车床实训台

SBSKB-06T-3型数控车床电气控制与维修实训台

SBSKB-06T-3型数控铣床电气控制与维修实训台

数控车/铣床智能综合实训考核实验台

SB、CNC数控车、铣床综合智能实训考核装置(二合一)

SBWK-01B机床电气控制技术及工艺实训考核装置(网孔板)

数控模组化生产流水线综合系统:CD制程机

步进电机交流伺服电动机驱动系统实验装置

光机电气一体化控制实训设备

光机电气一体化实训设备

光机电气一体化控制实训系统

SBGJD-235A光机电一体化高速分拣实训系统

SBGJS-2型模块式柔性自动环形生产线实验系统、FMS柔性生产制造实验系统

SB-MPS01机电一体化柔性生产线加工系统

SBMES-01型MPS模块式柔性自动化生产线实训系统(六站)

材料分拣实训装置、材料分栋PLC实验设备、材料分拣实物教学实验装置

变压器/电机控制综合实验装置

电机与变压器维修实训设备

电机变压器维修及检测实训装置

电机故障检测实训考核设备

电机电控配线安装装置

电机性能综合测试装置

电机装配工技能实训装置

电机检修技能实训装置

电机拆装与维修实训台

GSB-740DY现代电机控制实验台

SBHCTS-1型电磁调速异步电动机自动调速实训考核装置

变频器、PLC、机床电路实训考核设备

智能型四合一机床电气控制技能实训考核鉴定装置

网络型普通车床电气技能实训考核装置

网络型平面磨床电气技能实训考核装置

网络型卧式镗床电气技能实训考核装置

网络型万能铣床电气技能实训考核装置

智能机床电路实训考核装置


 

021-61482202 021-61482206